MONTEGRANARO - PENTHOUSE SQM. 130 WITH PANORAMIC SEMI-PERIMETER TERRACE. FOR SALE.
In the Municipality of Montegranaro, exactly in Via Elpidiense Nord n. 150, For sale Penthouse of sqm. 130 (conventional) with semi-perimeter terrace of sqm. 80 and a cellar.
The apartment is located on the third floor with elevator of a building built in the 1970s and is in excellent condition.
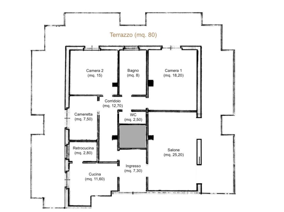
DIVISION OF THE ENVIRONMENTS AND REAL SURFACES
Entrance sqm. 7.30;
Living room sqm. 25.20;
Kitchen sqm. 11.60;
Scullery sqm. 2.80;
Corridor sqm. 12.70;
First room sqm. 18.20;
Second bedroom sqm. 15.00;
Bedroom sqm. 7.50;
Bathroom with bathtub sqm. 8.00;
WC with shower sqm. 2.50;
Semi-perimeter terrace sqm. 80.00;
The property includes a cellar of approx. 7.50 in the basement.












R6,806,000
R1,705,000
R5,725,000
R6,724,000
R9,587,000
R8,069,000