BOLOGNOLA - PORTION OF BUILDING SQM. 80 WITH TERRACE. FOR SALE.
In the Municipality of Bolognola, exactly along Via Luigi Maurizi, Quattropareti offers for sale a house on two floors per square meter. 80 (conventional) with terrace on the first floor.
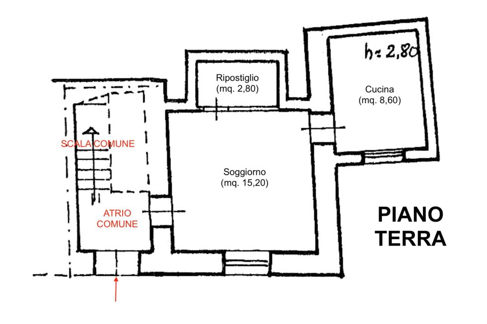
The property consists of two rooms on the ground floor (living room and kitchen), and two bedrooms with private bathroom and terrace, accessible through an atrium and an internal staircase shared with the other portion of the building.
There is a double access, one on each floor.
The building was renovated following the 2016 earthquake, therefore it is in good condition.
Possibility of creating a kitchen in one of the two bedrooms (which would become a living room with kitchenette) and through the construction of a bathroom on the ground floor, two two-room apartments would be obtained, one on each floor.
DIVISION OF THE ENVIRONMENTS AND REAL SURFACES:
Ground floor:
Living room sqm. 15.20;
Kitchen sqm. 8.60;
Storeroom sqm. 2.80;
First floor:
Hallway sqm. 7.00;
Room 1 sqm. 15.80 with terrace sqm. 15.00;
Room 2 sqm. 13.50;
Bathroom sqm. 4.00;






R6,806,000
R1,705,000
R5,725,000
R6,724,000
R9,587,000
R8,069,000